Default sidemenu image
Search

Leave a Message

Thank you for your message. We will be in touch with you shortly.

Explore Our Properties

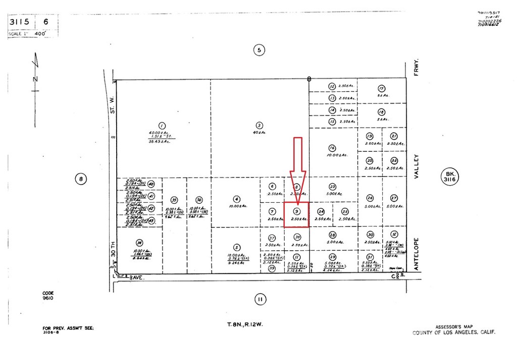
Property Description

The subject 2.5 acre land is situated at the northwest corner of Highway 14 and West Avenue C, just north of Fox Airfield and Apollo Park. Positioned within a potential future growth area, the property remains unimproved and will be delivered in its current condition.
APN: 3115-006-009,
Size: 2.5 Acres ,
Zoning: A-2-2; LCD22*
Gps: 34.793729, -118.176301
Driving: https://maps.app.goo.gl/4nEY2PDhEb28Knxf6

Overview

Property Status
For Sale
Lot Size
2.5 Acres
MLS ID
PW25071857
Property Type
Land

Features & Amenities

Neighborhood
Los Angeles County
View Description
Panoramic
Water Source
None
Utilites
Water Not Available
Lot Features
Agricultural, Lot Over 40000 Sqft
Sales Price
$12,995
Zoning
LCD22*

Downloads

0 W Avenue B14 + 25th St. W.

Schedule a Tour

I would love to help you see this beautiful home! As a full-service brokerage, we can help you tour. Please submit an offer, and answer questions about the buying process.

Enter a valid email

Thank you

for your interest in 0 W Avenue B14 + 25th St. W., Lancaster, CA 93536

back to page
0 W Avenue B14 + 25th St. W.
Navigate

Mortgage Calculator

Estimate your monthly mortgage payment, including the principal and interest, property taxes, and HOA. Adjust the values to generate a more accurate rate.
$0,000 Your Payment 20 15 65
$0,000 Your Payment

I'm Interested In

0 W Avenue B14 + 25th St. W.

or
  • CallAmir Maloumi

    License #01922541

    714-818-3667
  • Follow Us On Instagram